Kostenlos aber wertvoll
Ein Haus ist keine Waschmaschine!
Durch unsere Systemarchitektur bieten wir Ihnen große Sicherheit beim Hausbau:
Bauweise, Wand- und Dachaufbau, Kellerkonstruktionen und Haustechnik sind tausendfach über Jahrzehnte erprobt und bewährt. Baustellenabläufe und Logistik sind bestmöglich organisiert. Die Baukosten für Ihr Haus können wir Ihnen genauestens voraussagen und garantieren. Trotzdem bleiben Unsicherheiten, über die Sie informiert sein müssen! Eine Waschmaschine können Sie im Internet kaufen, ein Haus nicht!
Wichtig:
Bitte lesen Sie dieses Kapitel sorgfältig. Es erklärt viele Sachverhalte, die Sie beim Hausbau wissen müssen!
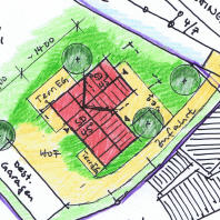
Wir erstellen im ersten Planungsgespräch wichtige Unterlagen für Sie - gute Entscheidungshilfen für den Grundstückserwerb und Ihre Finanzierung.
Hierzu zählen:
- Lageplanentwürfe
- Grundrissentwürfe
- Gesamtkostenkalkulationen
